小型转台式抛丸机
本文作者: admin / 发布时间:2023-04-19 / 浏览人数:0℃
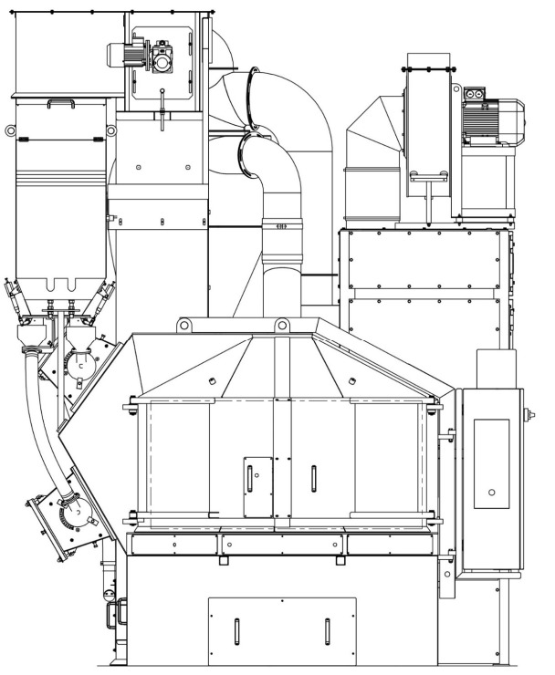
小型转台式抛丸机
一种小型
转台式抛丸清理机成功研发,这种转台式抛丸清理机结构紧凑,布局合理,适合抛丸各种怕碰撞、
容易变形的钢结构件、铝合金件以及其他材质的工件。见图:
主要有以下特点:
1、经过动态模拟设计的
抛丸器支架,
抛丸器被布置在合理的位置,可以在一个抛丸周期中同时从顶部和底部对零件进行
抛丸。
在抛丸过程中,工人需要装载/卸载/翻转在工作台上大而重的部件,在机器运行过程中可能会发生更多的损坏和事故。 因此,通过合理的布置抛丸器,确保能够同时从顶部和底部对零件进行抛丸,工人做的动作更少,安全性更高。
2、可靠、坚固、密封性好并容易转动的门,保证整台设备的可靠性,有良好的密封;工人能够很容易得打开、关闭大门。
锁定/解锁铰链门,有两级磁性开关,检测大门是否完全关闭;必须两级磁性开关同时发出信号,否则抛丸器不能打开。看下图
①通过气缸实现锁定/解锁铰链门,并且气缸上装有磁性开关,保证完全锁定铰链门。
②在两扇大门上各装有一件磁性块,组成一个完整的磁性开关,当发出了信号后,大门已经完全关闭。
抛丸室体内部采用轧制Mn13防护板;抛丸过程中,高速抛射出的钢丸撞击Mn13护板表面,会造成护板表面的温度升高,形成硬化层,变得更耐磨,使用寿命更长。同时,抛丸室内护板被切割成块状,方便更换机维修。
4.
抛丸器盖装有磁性检测器;用于控制
抛丸器盖的关闭。 如果传感器没有检测到盖子关闭,
抛丸器不能打开,不会有钢丸射出,造成安全事故。看下图
5.
分离器料仓内装有料位计;用来检测钢丸的最低值,它具有高的灵敏度,能够检测到钢丸的最低值,以实现设备良好的恒定工作。 如果钢丸低于最小值,触摸屏显示器会发出信号。看下图

6. 转台传动装置及提升机有安全系统。接近传感器控制
转台和提升机的旋转;采用金属小齿轮进行旋转检测,当
转台和提升机卡住或堵塞时,接近传感器发出信号,
转台和提升机的电机自动停止,,以防止
转台和提升机的电机烧毁。 同时
转台旋转装置安装有摩擦离合器,可以调节摩擦力的大小;当
转台遇到阻力并卡住时,摩擦离合器会自动脱开,防止转台电机烧坏。
转台电机采用变频调速,可以调节转台的转速,能够提高除锈效果;同时变频器保护了电机不被烧坏。
如果
转台停止转动,PLC 检测到工作台没有移动,
抛丸器会自动停止抛丸